T3 1º Esquerdo com Piscina

T3 1º Esquerdo com Piscina

Preço

31.848.000 CVE

Área

315 m²

Quartos

3

bathroom-appliance-tub-bathtub
Casas de banho

2 + 1

Condomínio

Apartamentos

14 apt. T3

Área comercial

4

Áreas Comuns

Parceiro

BCN- Parceiro Financeiro do Condomínio Serbam.
Uma relação de confiança!
𝗖𝗼𝗻𝗱𝗼𝗺𝗶́𝗻𝗶𝗼 𝗦𝗘𝗥𝗕𝗔𝗠
𝗘𝘅𝗰𝗹𝘂𝘀𝗶𝘃𝗼 𝗰𝗼𝗺𝗼 𝗮 𝘀𝘂𝗮 𝗛𝗶𝘀𝘁𝗼́𝗿𝗶𝗮.

Galeria

Descrição

Mais espaço. Mais privacidade. Mais prestígio.

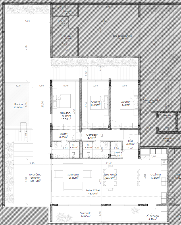
Com uma área total de 315 m², o T3 1º esquerdo é a tipologia mais exclusiva do Condomínio SERBAM. Localizado no 1.º andar esquerdo, distingue-se por uma generosa zona exterior com piscina privativa, deck de sol e espaço de barbecue — perfeita para momentos de lazer ao ar livre, em total conforto.

A área interior, com 180 m², oferece uma distribuição funcional, divisões amplas e acabamentos premium. A zona social conta com uma sala de estar espaçosa e uma cozinha equipada, com acesso direto a uma varanda que amplia a experiência habitacional. A área privada do apartamento com 1 suite, 2 quartos confortáveis, 1 casa de banho funcional e um lavabo.

Inclui ainda 1 lugar de estacionamento com arrumos na cave (oferta de estacionamento para quem comprar até fim de agosto), onde a tranquilidade e o prestígio são prioridade.

Este não é apenas um apartamento.
É um novo patamar de vida.

Planta

Não espere pelo momento ideal. O ideal está aqui.

Descubra as tipologias disponíveis e garanta o seu lugar no SERBAM — onde cada detalhe foi pensado para si.

Propiedades relacionadas

Preço
29 808 000 CVE
À VENDA

T3 1º andar drt

1.º andar direito
Preço (a partir de)
21 858 000 CVE
À VENDA

T3 Modelo

2.º ao 8.º andar
Preço (a partir de)
21 858 000 CVE
À VENDA

Área Comercial

2.º ao 8.º andar

Powered By EmbedPress