Áreas Comerciais
Apresentação Condomínio SERBAM
14 apt. T3
4
Áreas Comuns
- Piscina
- Ginásio
- Salão de Festa
- Deck
- Zona de Barbecue
- Praça de Leitura
Galeria
- Localização estratégica na Cidadela
- Áreas amplas entre 150 m² e 270 m²
- Acesso independente e direto da rua
- Fachadas envidraçadas com visibilidade comercial
- Infraestruturas modernas e versáteis
- Possibilidade de personalização interior
- Pronto para ligação a serviços técnicos (água, energia, telecomunicações)
- Ambiente premium integrado num condomínio de referência
Descrição
Os espaços comerciais do rés-do-chão do Condomínio SERBAM foram pensados para acolher negócios exigentes, com foco na qualidade, localização e imagem. Com áreas entre 150 m² e 270 m², estas unidades oferecem condições ideais para clínicas, escritórios, lojas, cafés ou outros serviços premium.
Localizados numa zona residencial em expansão, com elevada circulação e excelente visibilidade, os espaços dispõem de acesso independente, fachadas amplas e infraestruturas modernas. São uma oportunidade estratégica para investidores e empreendedores que valorizam funcionalidade, prestígio e retorno sustentável.
Seja para abrir portas ao público ou estabelecer uma presença sólida num dos bairros com maior potencial de valorização da cidade da Praia, estes espaços representam um investimento seguro com imagem diferenciadora.
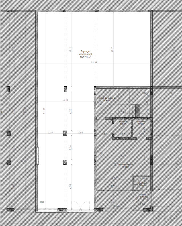
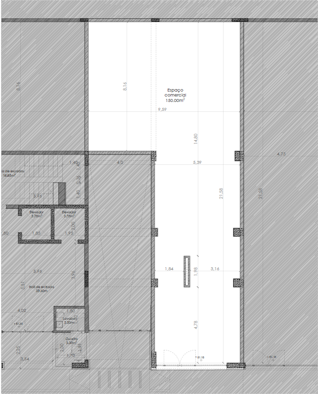
Planta
L-01 com 175 m2
Preço: 21 048 000 CVE
L-02 com 183 m2
Preço: 21 960 000 CVE
L-03 com 150 m2
Preço: 18 000 000 CVE
L-04 com 270 m2
Preço: 29 700 000 CVE
Não espere pelo momento ideal. O ideal está aqui.
Descubra as tipologias disponíveis e garanta o seu lugar no SERBAM — onde cada detalhe foi pensado para si.